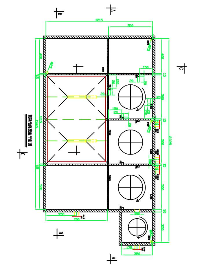
位于天津金海湖现场实验基地的混合沉淀一体池的设计图,与现场设备实际尺寸及结构一致,采用AutoCAD软件绘制。
| 采集时间 | 2019/04/08 - 2019/04/09 |
|---|---|
| 采集地点 | 天津市 |
| 数据量 | 516.7 KiB |
| 数据格式 | |
| 坐标系 |
现场混合沉淀一体池的设计图。
通过AutoCAD绘制。
本数据集是现场设备的设计图,现场设备按此图加工制造。
| # | 编号 | 名称 | 类型 |
| 1 | 2017YFE0114200 | 小型高效节能的沙漠苦咸水膜法淡化工艺开发和设备研制 | 国家重点研发计划 |
本作品采用
知识共享署名
4.0 国际许可协议进行许可。
| # | 标题 | 文件大小 |
|---|---|---|
| 1 | _ncdc_meta_.json | 3.1 KiB |
| 2 | 混合沉淀一体池.dwg | 253.9 KiB |
| 3 | 混合沉淀一体池.pdf | 262.7 KiB |
©2024 中国科学院西北生态环境资源研究院 备案号:陇ICP备2021001824号-34
兰州市东岗西路320号 730000 电话:0931-4967592, 0931-4967596